ÇäÇãÉÔÆ°»ºÊª·ï¾ÜºÙ - ÄỳÉÔÆ°»º³ô¼°²ñ¼Ò

ÇäÇãÉÔÆ°»ºÊª·ï¾ÜºÙ - ÄỳÉÔÆ°»º³ô¼°²ñ¼Ò

Ãæ¸Å°ì¸Í·ú½»Âð
¡Êʪ·ïÈֹ桧B0408¡Ë

ÄÅ»³»Ô¾®ÅÄÃæ2247-2¡¢2246-1 ÄÅ»³»Ô¾®ÅÄÃæ¸Í·ú

¢¨²èÁü¤ò¥¯¥ê¥Ã¥¯¤¹¤ë¤È³ÈÂç²èÁü¤ò¥¹¥é¥¤¥É·Á¼°¤Ç¸«¤ë¤³¤È¤¬¤Ç¤­¤Þ¤¹¡£

ʪ·ï²èÁü1 ʪ·ï²èÁü2 ʪ·ï²èÁü3 ʪ·ï²èÁü4
ʪ·ï²èÁü5 ʪ·ï²èÁü6 ʪ·ï²èÁü7 ʪ·ï²èÁü8


È÷¹Í
¡¡
¼è°·ÉÔÆ°»ºÅ¹
ÄỳÉÔÆ°»º³ô¼°²ñ¼Ò
¢£ÌȵöÈÖ¹æ
²¬»³¸©Ãλö¡Ê8¡ËÂè3882¹æ
¢£½êºßÃÏ
¢©708-0842
²¬»³¸©ÄÅ»³»Ô²ÏÊÕ1000-1
¢£ÅÅÏÃ/FAX
ÅÅÏÃ.0868-32-8735¡¡FAX.0868-32-8736
¢£±Ä¶È»þ´Ö
10:00¡Á19:00
ÄêµÙÆü:Ç¯ÃæÌµµÙ
¡Ê¤´Í½Ì󤤤¿¤À¤±¤ì¤Ð³Î¼Â¤Ç¤¹¡Ë

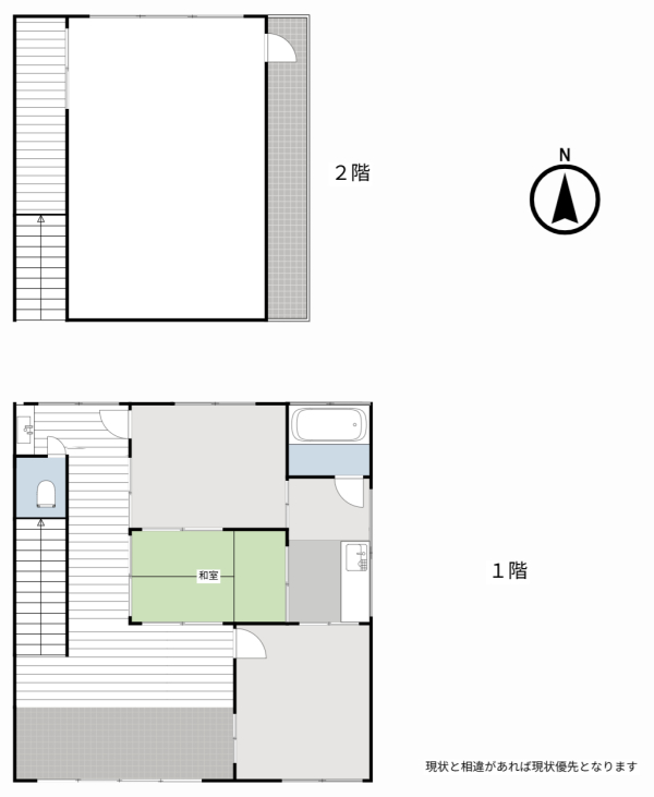
¹½Â¤ÌÚ¤2³¬·ú
·úʪÌÌÀÑ83.96­Ö¡Ê25.39ÄÚ¡Ë
ÅÚÃÏÌÌÀÑ223.54­Ö¡Ê67.62ÄÚ¡Ë
´Ö¼è¤ê£³£Ä£Ë
·úÃÛǯ1955ǯ1·î
²Á³Ê590Ëü±ß
ÀßÈ÷
´Ä¶­
¸ò¾Ä¾õ¶·ÈÎÇäÃæ
¡¡
Êݾڶ⡦Éß¶â¡¡
¸¢Íø¶â¡¡
°ì»þ¶âÅù
°Ý»ý´ÉÍýÈñ¡¡
Ãó¼Ö¾ì̵¤·¡¡
Ãó¼Ö¾ìÎÁ¶â¡¡
Ãó¼Ö¾ìÀâÌÀ¡¡
°ú¤­ÅϤ·ÁêÃÌ¡¡
ÅÚÃϸ¢Íø½êÍ­¸¢¡¡
ÃÏÌÜÂðÃÏ¡¡
ÃÏÌÜÀâÌÀ¡¡
ÅԻԷײ褽¤Î¾¡¡
ÍÑÅÓÃϰè¶áÎÙ¾¦¶ÈÃϰ衡
¹ñÅÚË¡ÆÏ½ÐÉÔÍס¡
ÀÜÆ»¾õ¶·¡¡
¼ÚÃϾò·ï¡¡
ÃÏÀª¡¡
´ÉÍý·ÁÂÖÅù¡¡
´Ö¼è¤êÆâÌõ¡¡
»äÆ»ÌÌÀÑ¡¡
·ú¤Ú¤¤Î¨80¡ó
ÍÆÀÑΨ200¡ó
ºÇ´ó¤ê±ØÅùJRÄÅ»³Àþ¡¡ÄÅ»³¸ý±Ø¡¡1200£í¡¡
¸òÄ̼êÃÊ¡¡
¹»¶èÄÅ»³»ÔΩ¸þÍÛ¾®³Ø¹»¡¡ÄÅ»³»ÔΩÄÅ»³À¾Ãæ³Ø¹»¡¡
¼è°ú·ÁÂÖÇÞ²ð
¸½¶·¶õ¼¼Ãæ¡¡
¹­¹ðÍ­¸ú´ü´Ö¡¡
·ÈÂÓ¥µ¥¤¥È
ÇäÇã(ÄÅ»³»ÔÃæ±ûÉô) | ÇäÇã(¤½¤Î¾¤ÎÃϰè) | ÇäÇãʪ·ï(ÄÅ»³ÅìÉô) | ÇäÇãʪ·ï(ÄÅ»³À¾Éô) | ÇäÇãʪ·ï(ÄÅ»³ÆîÉô) | ÇäÇãʪ·ï(ÄÅ»³ËÌÉô) | ÇäÇãʪ·ï(µ×ÊÆ·´) | ÇäÇãʪ·ï(¶ÀÌîÄ®) | ÇäÇãʪ·ï(¾¡ÅÄ·´) | ÇäÇãʪ·ï(Èþºî»Ô) | ÇäÇãʪ·ï(¿¿Äí»Ô)
´ÉÍý¼ÔÍÑ